Kde nás ve městě najdete?
V obchodním centru Galerie Na Soutoku v ulici Želetická.
Jak se k nám dostanete?
MHD: zastávka autobusu Litoměřice obchodní centrum, autobusová linka A (zdarma), bus směr Libčeves 552661, bus směr Slaný 552650, bus směr Lovosice 552661, bus směr Brozany 552650, bus směr Horní Beřkovice 552683, bus směr Budyně n. Ohří 552650, bus směr Libochovice 552637
Autem: tři minuty jízdy od centra města Litoměřice v přímé blízkosti napojení na dálnici D8, z ulice Mezibraní přes Tyršův most do ulice Želetická
Parkování: venkovní i podzemní parkoviště obchodního centra
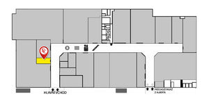
Umístění v obchodním centru: najdete nás v blízkosti hlavního vchodu, hned vedle prodejny Intersport
Mluvíme jazyky: česky, slovensky, english
Platby na prodejně: bezhotovostně / hotově CZC, €, $
